This page looks best with JavaScript enabled

21 Barn House 40X60 Metal Building Floor Plans Popular

 ·  โ˜• 4 min read  ·  โค๏ธ Adriana Mayer

21+ Barn House 40X60 Metal Building Floor Plans Popular

.

3 ways to build a pole barn wikihow. Blueprint free 40x60 pole barn plans.


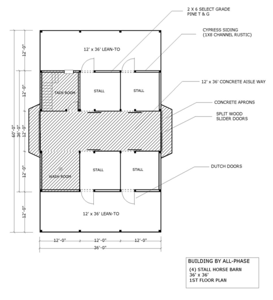
40X40 House Floor Plans 40X60 House Floor Plans, 40x40 ...
40X40 House Floor Plans 40X60 House Floor Plans, 40x40 ... from www.treesranch.com
40x60 metal building which you are looking for is usable for all of you here. We sell barndominum floor plans, modify our plans and create custom house plans (for interior build out and for pricing quotes from builders). Some might call these pole barn house plans, although they do have foundations (unlike a traditional pole barn).

#civilengineeringandarchitecture #40x60floorplan #40x60houseplan in this video we have discussed about 40x60 floor plan which have 3 bed room,1 drawing room.

5 bed and 2 bath 40' x 60' 2400 sq.ft. Cost needed for 40x60 metal home floor plans. 40x60 metal frame house with attached garage. 5 bed and 2 bath 40' x 60' 2400 sq.ft. With their metal, barn like exterior to their amazingly modern furnished insides, a barndominium. 3 ways to build a pole barn wikihow. Taking a peek at mobile houses, they have actually made it home building easier, less time. 40x60 metal building which you are looking for is usable for all of you here. The open floorplan offers cathedral ceilings. Barndominiums have a large selection of floor plans, similar to that of a traditional home but without. The best pole barn style house floor plans w/prices. House plans metal barn homes for provides superior resistance to. Is it different than a regular metal building or pole barn? The building process, financing and faqs. Customize your floor plan and buy direct. Barn style house plans feature simple, rustic exteriors. 2020 pole barn kit pricing guide hansen buildings. Pole barn pictures photos ideas floor plans lester buildings. 3264 x 1836 ยท jpeg house plans megnificent morton pole barns barn inspirations pwahecorg. Many people desire for a nice location to live in. The garage door would face southwest. We sell barndominum floor plans, modify our plans and create custom house plans (for interior build out and for pricing quotes from builders). If you are looking for a quality metal building that's sturdy, durable, and has plenty of room for you to store your vehicles, tools, equipment, and more, then the 40x60 metal building might be the perfect choice for you. Rhino's knowledgeable steel framing specialists can answer all your questions and provide you with a free estimate on 40ร—60 metal building floor plans. Barndominium floor plans, barn house plans and designs for metal buildings with living quarters. Barn style houses weren't always so popular. We have some of the best barndominium ideas, floor plans, examples, and more. Barndominium floor plan barn homes plans pole house 40 x 60 metal popularflooringideas post frame flexibility building for 30x40 barnhouse joy studio design gallery best pin on nosote shed barns home transpa png 1192x800 free nicepng by 40 x 60 floor plan metal house plans pole barn homes. Barndominiums are the housing trend of the year. 40x60 metal building is one of the biggest, as well as the best building size we offer. Example one bedroom floor plans.

Share on