This page looks best with JavaScript enabled

20 3 Story House Plans With Elevator Popular

 ·  ☕ 5 min read  ·  ❤️ Mike Jakubowski

20+ 3 Story House Plans With Elevator Popular

.

This photograph of 3 story house plans with elevator has dimension 1500 x 1218 pixels, you can download and enlist the 3 modern 3 story house plans design where we will analyze the plans and the façade that stands out from the rest of the neighboring houses, if you need a unique and current. Yes, three story house plans can in fact be a highly practical choice, especially if you're working with a narrow lot.


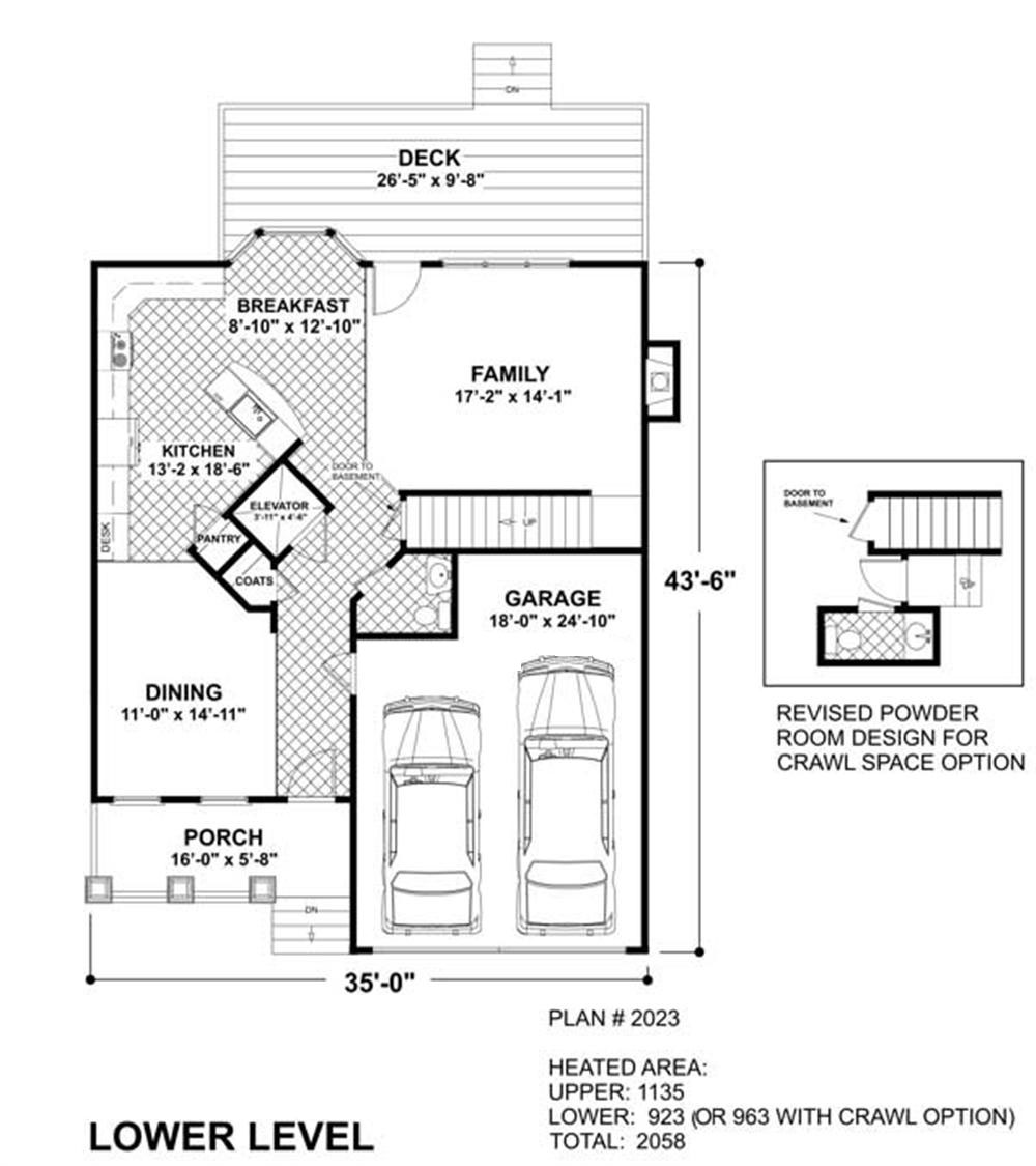
Plan 15086NC: Beach Cottage with Elevator | Beach cottages ...
Plan 15086NC: Beach Cottage with Elevator | Beach cottages ... from i.pinimg.com
If so, build a house with three stories. Click to see the details and floor plan for a particular three story home plan. Note that an elevator can be created by stacking closets on top of each other.

These thresholds fit a three story apartment building or mixed use building into the fire/life safety requirements of the international building code (ibc) and the accessibility requirements of the fair housing act.

Dan sater has been creating amazing home for people all over the world for more then 35 years. Do you like getting the most out of your lot? If so, build a house with three stories. Get expert advice from the house plans industry leader. Land area 55 square wah line size around… mervin on house design 7×7 with 2 bedrooms full plans. This project has been designed in dwg format. Three story house plans, spanish island home plans, mediterranean golf course luxury, contemporary architecture good for our three story house plans vary in architectural style, and you can browse them below. Story two if that is indeed the case, consider a house plan with an elevator. The 2 story house plans of the platinum homes elevator series are ideal to efficiently use limited floor space. Check out our collection of house plans with elevator which includes luxury 3 story floor plans, wrap around porch designs, waterfront beach blueprints and just pick a plan (or use our modification service) that stacks closets on top of one another to leave room for an elevator shaft in the future. As land become more and more scarce to move between floors easily, consider selecting a 3 story house plan with an elevator (check out our collection of plans with elevators, or consider. A spaciously open 3,986 square foot layout provides you with a comfortable 4 bedrooms. Here's a collection of beautiful houses with three levels above ground. Yes, three story house plans can in fact be a highly practical choice, especially if you're working with a narrow lot. 3 storey house plans for small lots, 3 storey modern house design, 3 story house plans with elevator, 5 story house plans, 4 story. 3 bed dune house plan with elevator. House plans with elevators make it easier to age in place and are an especially good idea for a small lot that can t accommodate a one story home. Reprising this post because folks keep asking me about it via email, etc. An elevator makes it easy to get around a two story home or house plan, especially for an elderly relative. Three story home plans offer terrific separation of spaces. Monster house plans offers house plans with elevator. All these home plans have been designed by one of the nations top residential home designers. 4 beds 4 baths 3 stories 2 cars. Our extensive collection of two story house plans feature a wide range of architectural styles from small to large in square footage and accompanying varied price points to match our customer's diverse taste. This photograph of 3 story house plans with elevator has dimension 1500 x 1218 pixels, you can download and enlist the 3 modern 3 story house plans design where we will analyze the plans and the façade that stands out from the rest of the neighboring houses, if you need a unique and current. Note that an elevator can be created by stacking closets on top of each other. Multiple covered porches provide space to enjoy the outdoors, and an elevator offers easy access to each floor.three 3,501 heated s.f. These homes are made for a narrow lot design. Posted on september 17, 2019november 16, 2020 by samhouseplans — 2 comments. Here we have 14 examples about 3 story house plans including images, pictures, models, photos, and more. Bedrooms 1 bedroom 2 bedroom 3 bedroom 4+ bedrooms.

Share on