This page looks best with JavaScript enabled

31 Eco House Designs And Floor Plans Popular

 ·  ☕ 4 min read  ·  ❤️ Prof. Nelle Strosin V

31+ Eco House Designs And Floor Plans Popular

.

| 100% independent, 100% electric. Previous photo in the gallery is bloombety modular eco friendly house plans.


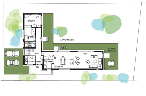
Hands Down These 18 Eco Friendly Floor Plans Ideas That ...
Hands Down These 18 Eco Friendly Floor Plans Ideas That ... from www.smalltowndjs.com
56 page us measurements exterior cabin shell cad designed scale drawings with both raised wood floor and concrete slab. Browse our collection of different architectural styles & find the right plan for you. Pwd bang makaavail ng iyong house design/floor plan royal rain forest?

| 100% independent, 100% electric.

There are passive house and leed certified. Previous photo in the gallery is bloombety modular eco friendly house plans. 56 page us measurements exterior cabin shell cad designed scale drawings with both raised wood floor and concrete slab. It looks like you are wanting something custom. Easily change the placement of bedrooms, bathrooms, storage areas, home office, & other rooms. Looking for house floor plans? ✓ check out our floor our home floor plans are designed on a grid system that runs both horizontally and vertically. Want to build your own home? This category essentially describes any design that has a more historical style and a floor plan with formally defined spaces—that is, in contrast to. Simple footprints, smaller square footage, the potential for passive solar gain. This allows for many options in the placements of. The building and designing process is stressful enough as it is — so your best course of action is to opt for ease where you can. The best economy / lowcost house floor plans w/prices. For next photo in the gallery is eco friendly home familly. Tiny house trailer plans, mini house plans, tiny homes, micro houses, small house, little homes, little tiny homes, greenhomes. Free ground shipping on all orders. Energy efficient house plans can save you money on your energy bills, and several things to consider when building green living house plans: | 100% independent, 100% electric. See more ideas about floor plans, house plans, house design. This gets you optimum personal customer service and large discounts and direct contact with the architect or designer for any. There are passive house and leed certified. Over 28,000 architectural house plan designs and home floor plans to choose from! Browse eco & environmentally friendly, sustainable, craftsman, modern & more designs! Browse our collection of different architectural styles & find the right plan for you. A large utility room for. Best product description of narrow block house designs : Here are a few of our popular house. Is this what we should be building? Example of an eco house floor plan scientific diagram. Monsterhouseplans.com offers 29,000 house plans from top designers. Coastal house plans, southern living house plans, cottage house plans, single story house plans, alley access house plans, classic american house plans, european house plans and our new house plans.

Share on